Projektbeschreibung
Die Konzeption des Gebäudes, entworfen durch Fiedler Architekten, folgt den drei Aspekten – Form, Funktionalität und Nachhaltigkeit. Jedes Gebäude ermöglicht eine ganz flexible Flächenaufteilung mit bis zu vier Mietern pro Stockwerk, erfüllt die neusten technischen Standards und trägt durch seine Ausgestaltung maßgeblich zur Mitarbeitermotivation bei.
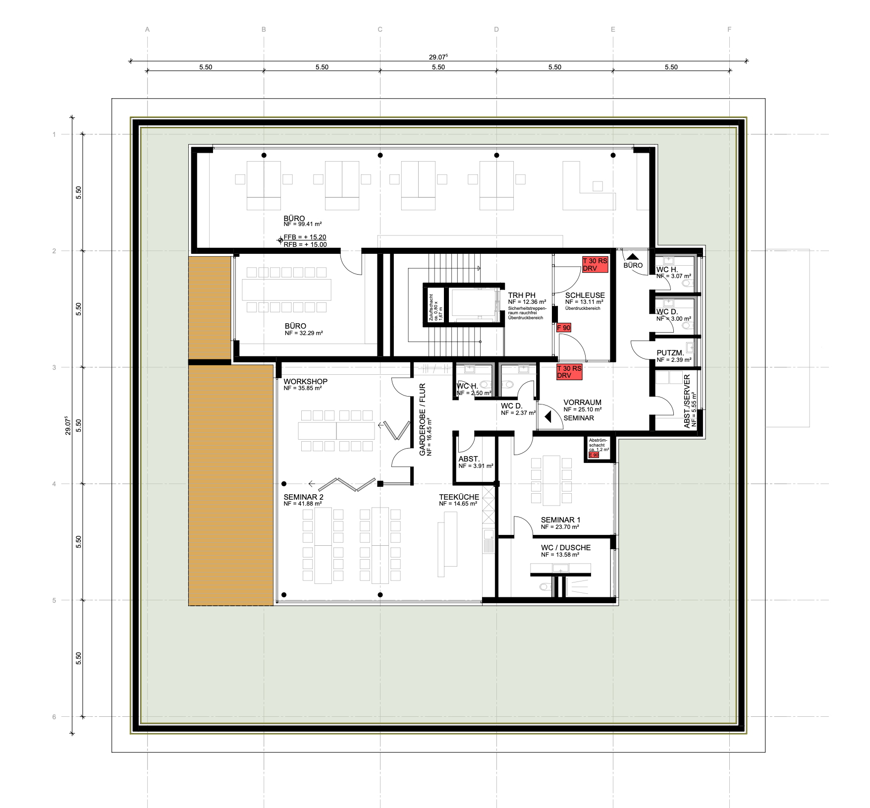
Planungsunterlagen - vorläufig & unverbindlich
Planung, Gestaltung und Ausstattung im Inneren
Für die innenarchitektonische Planung und Realisierung empfehlen wir potentielle Partner, die gemeinsam mit Ihnen und uns, ganz wie Sie wünschen, durch ihre Gestaltung und Ausstattung die flexiblen Nutzungsmöglichkeiten des OFFICECAMPUS voll zur Geltung bringen sowie den Einsatz modernster Büromöbel und technischer Infrastruktur in Perfektion umsetzen.

mit Produkten der Firma

Die Firma KIST aus Konstanz begleitet und realisiert Projekte von A-Z - individuell, kompetent und genau passend zu Ihrem Budget. Ganz gleich, ob Sie einen Schreibtisch suchen oder eine perfekt auf Ihre Bedürfnisse abgestimmte Raumgestaltung benötigen.
ANSPRECHPARTNER:
KIST - Heiko Benz
Steelcase - Andreas Denda

Die Firma klaiber aus Pfullendorf gestaltet Räume, richtet ein und schafft im Dialog mit dem Kunden maßgeschneiderte Büro- und Einrichtungskonzepte, die die Unternehmensziele und das Wohl der Mitarbeiter im Blick behalten.
ANSPRECHPARTNER:
klaiber - Patrick Klaiber & Michael Gaupp

Die Firma smow aus Villingen bietet eine ganzheitliche Konzeption und innenarchitektonische Planung mit entsprechender Visualisierung. Eine Beratung bei der Büroplanung oder bei der Wahl eines bequemen Bürostuhls bis zur Umsetzung einer neuen Arbeitswelt. Darüber hinaus Soll-/Ist-Analysen, Kosten- bzw. Budgetschätzungen sowie Planungsleistungen unter Berücksichtigung der aktuellen Normen und Vorschriften.
ANSPRECHPARTNER:
smow - Michael Klausmann & Andreas Lehnhardt
Projekt Partner
Bei der Realisierung der OFFICECAMPUS Business & Meeting Area arbeiten wir mit engagierten, innovativen und lokalen sowie regionalen Partnern eng und vertrauensvoll zusammen.
ARCHITEKTUR - ENTWURF
Roland Fiedler
Referenzen:
Fiedler & Martin, Wohn- und Bürogebäude, Stockach
Stema - Bürogebäude, Neuhausen ob Eck
Hertle - Hofladen, Stockach
Getreu unserer Firmenphilosophie „Gestaltung wächst im Herzen“ konnten wir von Beginn an durch die Logoentwicklung dem Projekt Office Campus eine besondere Botschaft mit auf den Weg geben. Durch die interessante Architektur, aufgegriffen und kreativ umgesetzt im Logo, entsteht ein Projekt mit klarem Statement. Jetzt kann die Vision endlich in die Bauentwicklung starten.
WERBEAGENTUR
Jennifer Wohlhüter
&
Melanie Koltz
Referenzen:
Stadt Radolfzell - Radolfzell
IHK Hochrhein Bodensee - Konstanz
Reinhold Beck Maschinenbau GmbH - Krauchenwies






























